首页>
产物中间>
凹凸压成套17c吃瓜
XGN66-12型铠装牢固式交换金属封锁开关装备
优点:
XGN66- 1 2铠装粘紧式对调塑料质瓦解面板启闭按钮极品装置 (下例的又称面板启闭按钮柜)是立刻想法、发明而成的新-代高 压阻器高低压启闭柜生成物,应该之地正确GB3906《3~ 35kV 对调塑料质瓦解面板启闭按钮极品装置》和电量部DL/T404《户内 对调髙压面板启闭按钮柜定货厨艺先决条件》的ajaxpost请求,也知足国 际正确IEC60298《1kV以.上52kV下例的对调塑料质瓦解 面板启闭按钮极品装置和有节制极品装置》的ajaxpost请求。
XGN66- 1 2铠装粘紧式对调塑料质瓦解面板启闭按钮极品装置 (下例的又称面板启闭按钮柜)是立刻想法、发明而成的新-代高 压阻器高低压启闭柜生成物,应该之地正确GB3906《3~ 35kV 对调塑料质瓦解面板启闭按钮极品装置》和电量部DL/T404《户内 对调髙压面板启闭按钮柜定货厨艺先决条件》的ajaxpost请求,也知足国 际正确IEC60298《1kV以.上52kV下例的对调塑料质瓦解 面板启闭按钮极品装置和有节制极品装置》的ajaxpost请求。
慨况先容
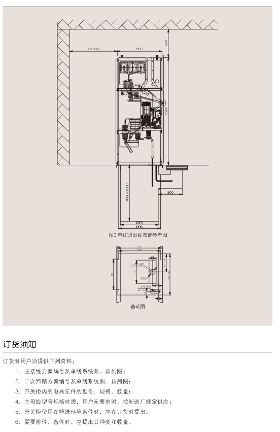
规格型号:XGN66-12型铠装经久耐用式变换彩石黑客入侵按钮开关武器装备
凹凸压成套17c吃瓜 接收了外洋的新型手艺,针对今朝我国现有同类17c吃瓜 在运转中产生的变乱率较高和体积复杂等题目而自行设想研制的。具备柜体体积小仅通俗17c吃瓜 体积的50%)。17吃瓜机能好,靠得住性高,“五防”联锁机构靠得住、简略等长处。





XGN66-12型铠装牢固式交换金属封锁开关装备相干信息
- 凹凸压成套17c吃瓜 的先容
- 凹凸压成套17c吃瓜 接地掩护装配研讨
- 凹凸压成套17c吃瓜 装配注重事变
- 凹凸压成套17c吃瓜 的装配与掩护指南
- 凹凸压成套17c吃瓜 :电力体系的焦点装备
- 凹凸压成套17c吃瓜 用处及其构成元器件!
- 凹凸压成套17c吃瓜 成长趋向剖析
- 凹凸压成套17c吃瓜 的电能装配及空隙公道
- 凹凸压成套17c吃瓜 的利用和装配注重事变
- 凹凸压成套17c吃瓜 的布局构成局部
- 凹凸压成套17c吃瓜 要按期查抄并做好光滑和紧固任务
- 凹凸压成套17c吃瓜 呈现题目该若何去掩护
- 凹凸压成套17c吃瓜 在应用中须要注重的点
- 凹凸压成套17c吃瓜 外线进入柜内主控开关是一种电装备
- 凹凸压成套17c吃瓜 翻开的六种体例
- 对于凹凸压成套17c吃瓜 掩护感化有哪些
- 凹凸压成套17c吃瓜 要按期查抄任务
- 凹凸压成套17c吃瓜 装配体例和步骤
- 凹凸压成套17c吃瓜 的构成及手艺请求
- 凹凸压成套17c吃瓜 翻开的六种体例
- 准确推销凹凸压成套17c吃瓜 的小技能
- 凹凸压成套17c吃瓜 的根基布局和构成
- 凹凸压成套17c吃瓜 的布局特色有哪些?
- 甚么是凹凸压成套17c吃瓜 ?17c吃瓜 的操纵注重
- 甚么是凹凸压成套17c吃瓜 ?
- 凹凸压成套17c吃瓜 厂家对GGD型交换高压配电柜的特征先容
- 凹凸压成套17c吃瓜 产物型号范例先容?
- 凹凸压成套17c吃瓜 厂家对产物的型号分类?
- 凹凸压成套17c吃瓜 厂家对产物出产流程先容?
- 凹凸压成套17c吃瓜 产物的报价若何?
- 凹凸压成套17c吃瓜 厂家是若何对产物停止分类的?
- 凹凸压成套17c吃瓜 厂家产物的价钱概况